Căn hộ 35m2 đẹp mãn nhãn với nội thất nhiều màu sắc

Tuy nhỏ nhưng điều ấn tượng đối với bất kỳ ai bước vào căn hộ này đó là không gian thông thoáng tràn ngập ánh sáng tự nhiên, bài trí đẹp và vô cùng tiện nghi. Không những thế việc lựa chọn những gam màu tươi sáng cho rất nhiều món đồ nội thất trong nhà còn tạo được ấn tượng mạnh cho khách vào nhà.

 


Tổ ấm nhỏ xinh đẹp với những gam màu duyên dáng, nổi bật ngay từ lối vào nhà mà không cần quá nhiều công sức và chi phí trang trí.

Tổ ấm nhỏ xinh đẹp với những gam màu duyên dáng, nổi bật ngay từ lối vào nhà mà không cần quá nhiều công sức và chi phí trang trí.

 

 


Ngay lối vào nhà, bức tường được sơn màu xanh mát mắt làm nổi bật các gam màu của phụ kiện và vật dụng. Hai bên lối vào được bố trí với tủ đựng giày, giá treo quần áo tiện dụng, giương và nhiều đồ vật dụng trang trí khác.

Ngay lối vào nhà, bức tường được sơn màu xanh mát mắt làm nổi bật các gam màu của phụ kiện và vật dụng. Hai bên lối vào được bố trí với tủ đựng giày, giá treo quần áo tiện dụng, giương và nhiều đồ vật dụng trang trí khác.

 

 


Tuy nhỏ nhưng căn hộ vẫn có thể phân tách thành 2 khu vực riêng biệt mà không ảnh hưởng đến sự thông thoáng của không gian.

Tuy nhỏ nhưng căn hộ vẫn có thể phân tách thành 2 khu vực riêng biệt mà không ảnh hưởng đến sự thông thoáng của không gian.

 

 


1/3 ngôi nhà được ngăn ra làm khu vực bếp, bàn ăn và nhà tắm. Phần diện tích rộng còn lại là khu vực dành cho không gian tiếp khách, nghỉ ngơi và bàn làm việc rộng thoáng.

1/3 ngôi nhà được ngăn ra làm khu vực bếp, bàn ăn và nhà tắm. Phần diện tích rộng còn lại là khu vực dành cho không gian tiếp khách, nghỉ ngơi và bàn làm việc rộng thoáng.

 

 


Góc tiếp khách được ưu tiên đặt ngay cạnh ban công mở ra bên ngoài. Nhờ hệ cửa kính rộng mở mà căn hộ luôn tràn ngập ánh sáng dù chỉ có duy nhất một mặt thoáng.

Góc tiếp khách được ưu tiên đặt ngay cạnh ban công mở ra bên ngoài. Nhờ hệ cửa kính rộng mở mà căn hộ luôn tràn ngập ánh sáng dù chỉ có duy nhất một mặt thoáng.

 

 


Tuy được bố trí khá đơn giản chỉ với những nội thất cần thiết như sofa, bàn trà nhưng các chi tiết trang trí đến từ màu sắc bắt mắt của nội thất và những bức trang tường lạ mắt đã tạo nên điểm nhấn và vẻ đẹp đặc biệt cho phòng khách.

Tuy được bố trí khá đơn giản chỉ với những nội thất cần thiết như sofa, bàn trà nhưng các chi tiết trang trí đến từ màu sắc bắt mắt của nội thất và những bức trang tường lạ mắt đã tạo nên điểm nhấn và vẻ đẹp đặc biệt cho phòng khách.

 

 


Trong căn hộ này mọi thứ nội thất đều được chủ nhà lựa chọn vô cùng khéo léo, nhỏ xinh nhưng vừa khít với từng góc nhỏ của không gian.

Trong căn hộ này mọi thứ nội thất đều được chủ nhà lựa chọn vô cùng khéo léo, nhỏ xinh nhưng vừa khít với từng góc nhỏ của không gian.

 

 


Điều này không những bảo đảm chức năng để đồ tiện nghi mà còn tiết kiệm tối đa diện tích cho không gian. Phòng khách nhỏ nhưng tươi tắn, bắt mắt với nhiều màu sắc.

Điều này không những bảo đảm chức năng để đồ tiện nghi mà còn tiết kiệm tối đa diện tích cho không gian. Phòng khách nhỏ nhưng tươi tắn, bắt mắt với nhiều màu sắc.

 

 


Góc làm việc thoáng sáng được bài trí tuyệt đẹp với những món đồ trang trí xinh yêu, hoa tươi và một kệ sách hình khối lạ mắt.

Góc làm việc thoáng sáng được bài trí tuyệt đẹp với những món đồ trang trí xinh yêu, hoa tươi và một kệ sách hình khối lạ mắt.

 

 


Những gam màu được kết nối tinh tế và nhẹ nhàng mang đến vẻ đẹp rất thú vị khi ngắm nhìn từng góc nhỏ của không gian này.

Những gam màu được kết nối tinh tế và nhẹ nhàng mang đến vẻ đẹp rất thú vị khi ngắm nhìn từng góc nhỏ của không gian này.

 

 


Căn hộ khá nhỏ nhưng được phân chia các không gian chức năng khá hợp lý và khoa học. Khu vực nghỉ ngơi êm ái được dành riêng một góc nhỏ nằm trong cùng một không gian với phòng khách.

Căn hộ khá nhỏ nhưng được phân chia các không gian chức năng khá hợp lý và khoa học. Khu vực nghỉ ngơi êm ái được dành riêng một góc nhỏ nằm trong cùng một không gian với phòng khách.

 

 


Tuy nhiên nó lại vô cùng kín đáo, riêng tư và thoải mái cho người sử dụng bởi góc nhỏ này được nâng cao hơn hẳn so với mặt sàn phòng khách. Khi cần thiết có thể dễ dàng kéo tấm rèm tạo không gian yên tĩnh cho giấc ngủ.

Tuy nhiên nó lại vô cùng kín đáo, riêng tư và thoải mái cho người sử dụng bởi góc nhỏ này được nâng cao hơn hẳn so với mặt sàn phòng khách. Khi cần thiết có thể dễ dàng kéo tấm rèm tạo không gian yên tĩnh cho giấc ngủ.

 

 


Góc thư giãn tuyệt đẹp không thể không nhắc đến trong ngôi nhà này đó là khu vực ban công. Nơi đây chỉ chiếm tổng diện tích 7m2 nhưng nó lại là không gian lý tưởng nhất, thư thái nhất trong căn hộ.

Góc thư giãn tuyệt đẹp không thể không nhắc đến trong ngôi nhà này đó là khu vực ban công. Nơi đây chỉ chiếm tổng diện tích 7m2 nhưng nó lại là không gian lý tưởng nhất, thư thái nhất trong căn hộ.

 

 


Khu bếp và bàn ăn tuyệt đẹp được bố trí tách biệt với khu vực tiếp khách. Mặc dù căn hộ có diện tích khá khiêm tốn nhưng nhờ lựa chọn lựa các nội thất và tạo các khu vực chức năng hợp lý nên vẫn đáp ứng khá đầy đủ nhu cầu sử dụng.

Khu bếp và bàn ăn tuyệt đẹp được bố trí tách biệt với khu vực tiếp khách. Mặc dù căn hộ có diện tích khá khiêm tốn nhưng nhờ lựa chọn lựa các nội thất và tạo các khu vực chức năng hợp lý nên vẫn đáp ứng khá đầy đủ nhu cầu sử dụng.

 

 


Tất cả tủ, bếp nấu và các vật dụng phục vụ cho việc nấu nướng hàng ngày đều được sắp xếp gọn gàng ngăn nắp.

Tất cả tủ, bếp nấu và các vật dụng phục vụ cho việc nấu nướng hàng ngày đều được sắp xếp gọn gàng ngăn nắp.

 

 


Bàn ăn xinh xắn, thiết kế nhỏ gọn và được tô điểm bằng nhiều màu sắc.

Bàn ăn xinh xắn, thiết kế nhỏ gọn và được tô điểm bằng nhiều màu sắc.

 

 


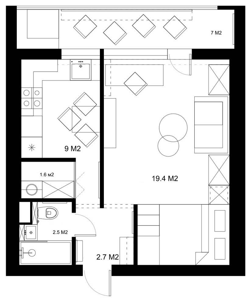
Sơ đồ bố trí toàn bộ không gian căn hộ.

Sơ đồ bố trí toàn bộ không gian căn hộ.

 

Công ty TNHH Phát Triển Bảo Hưng Thịnh
Hotline: 0942.709.682 - 0981.128.892
Email: baohungthinh18@gmail.com
Website: https://kientruchungthinh.com

Bình luận

Hiện chưa có bình luận nào

Căn hộ 35m2 đẹp mãn nhãn với nội thất nhiều màu sắc "Căn hộ 35m2 đẹp mãn nhãn với nội thất nhiều màu sắc" đạt  Căn hộ 35m2 đẹp mãn nhãn với nội thất nhiều màu sắcIHAPPY

Trên diện tích vẻn vẹn 35m2 nhưng căn hộ này lại khiến người xem bị chinh phục hoàn toàn nhờ sử dụng những gam màu tươi sáng, cách bài trí nội thất khéo léo và lựa chọn vật dụng trang trí đơn giản nhưng tiện dụng.

false
4.9/5 dựa trên 37 người đánh giá.
GỬI BÌNH LUẬN